Entwicklungsgebiet Neustadt Pelzerhaken
Rahmenplan
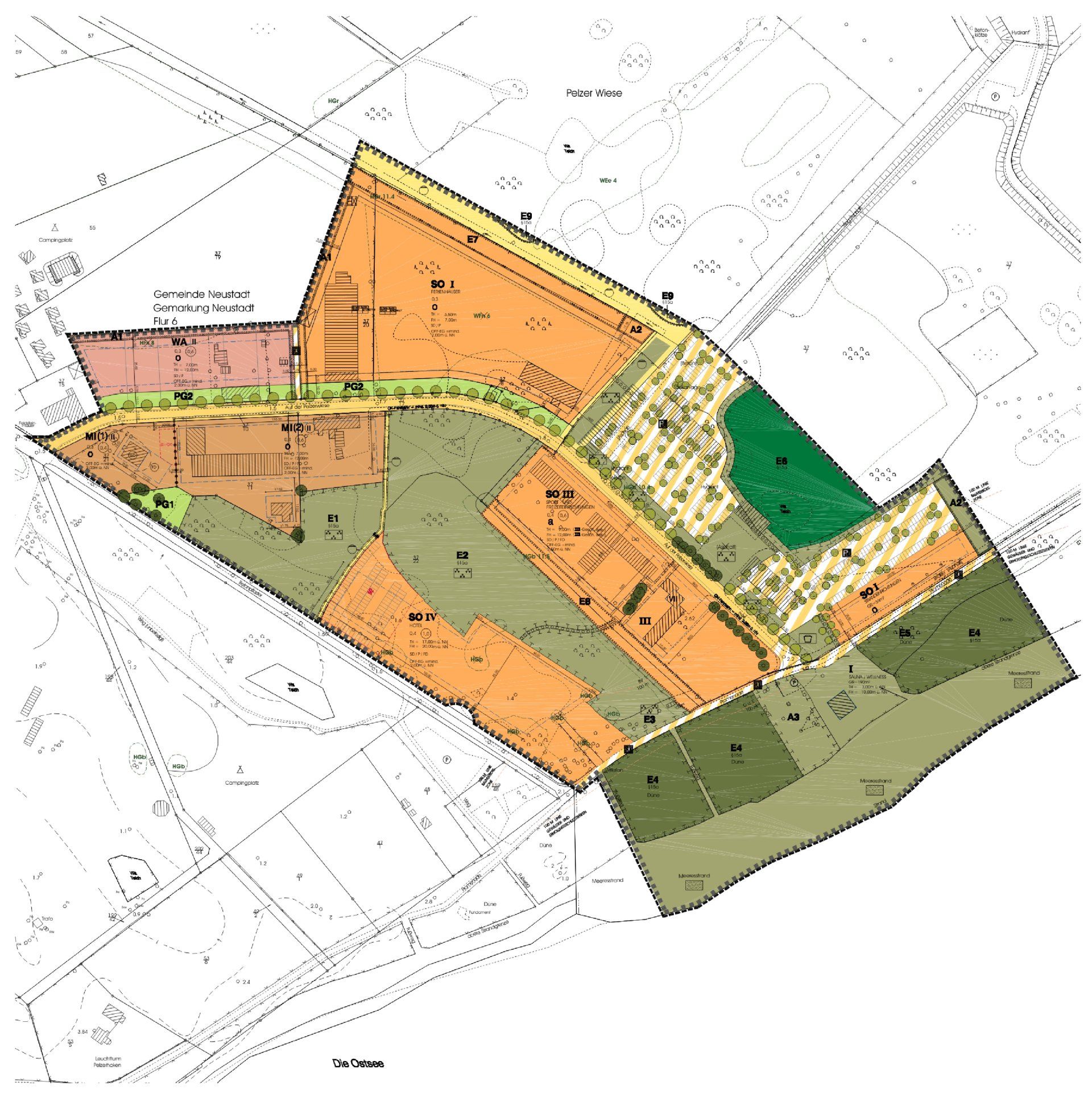
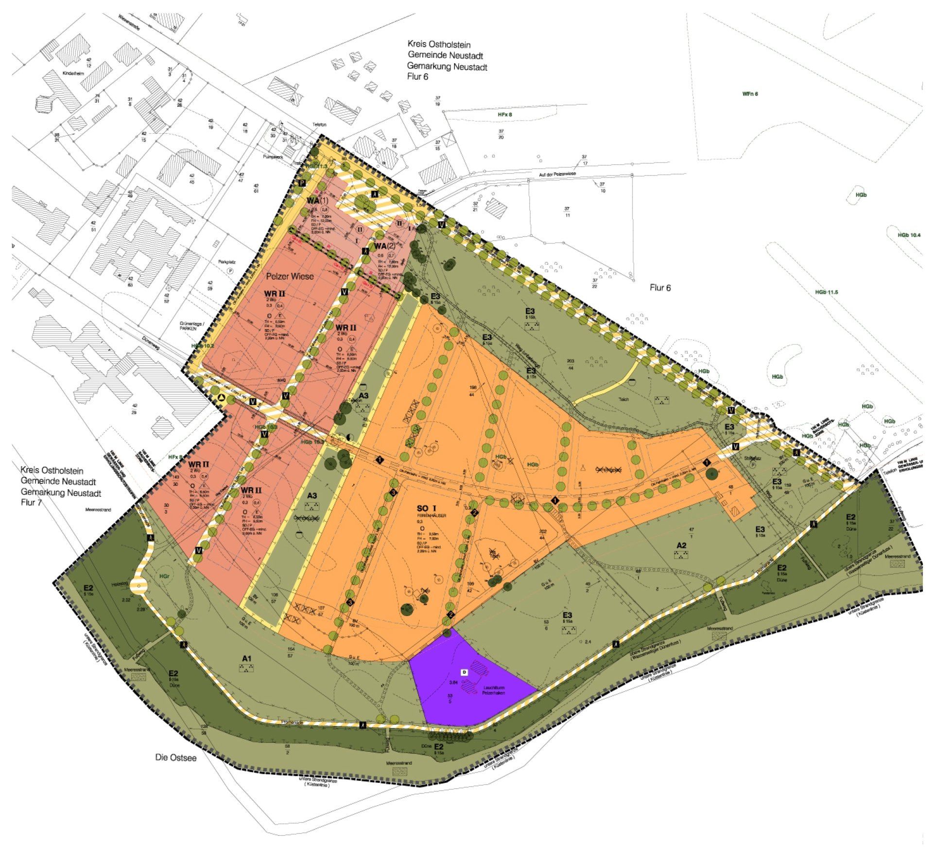
Ziel der Planung ist, eine markante städtebauliche Struktur des Gebietes zu schaffen, das Planungsgebiet fugenlos an den Bestand anzubinden und vorhandene städtebauliche Elemente weiterzuführen. Unterschiedliche Nutzungen, wie Wohnen und Tourismus bzw. Freizeiteinrichtungen sind so angeordnet, dass eine gegenseitige Störung ausgeschlossen wird.
Das Rückgrat des Entwicklungsgebietes bildet die Verlängerung der Wiesenstraße bis zum Strand. Hier liegen als Verknüpfung zum Bestand ein Versorgungs- und Lebensleistungszentrum an einem verkehrsfreien Platz, der die neue Mitte des Ortsteils Pelzerhaken bildet. Von da aus führt die Wiesenstraße, als Allee ausgebaut und verkehrsberuhigt, bis zum geplanten Strandhotel mit ca. 180 Zimmern. Hier entsteht ein zweiter Platz mit Blick auf die Ostsee und die Dünenlandschaft.
Südlich dieser Achse ist im nordwestlichen Teil ein Wohngebiet und im südöstlichen Teil ein Sondergebiet für Ferienhäuser geplant. Nördlich der Wiesenstraße ist ein weiteres Ferienhausgebiet sowie ein Sondergebiet für Sport- und Freizeiteinrichtungen vorgesehen. Hierüber wird auch ein geplanter öffentlicher Parkplatz mit ca. 400 Stellplätzen angebunden.
Auftraggeber:
Stadt Neustadt / Stadtbauamt
Planungsfläche:
36 ha
Projektzeitraum:
2001 - 2002






