Zentrale Notaufnahme
Medizinische Hochschule Hannover
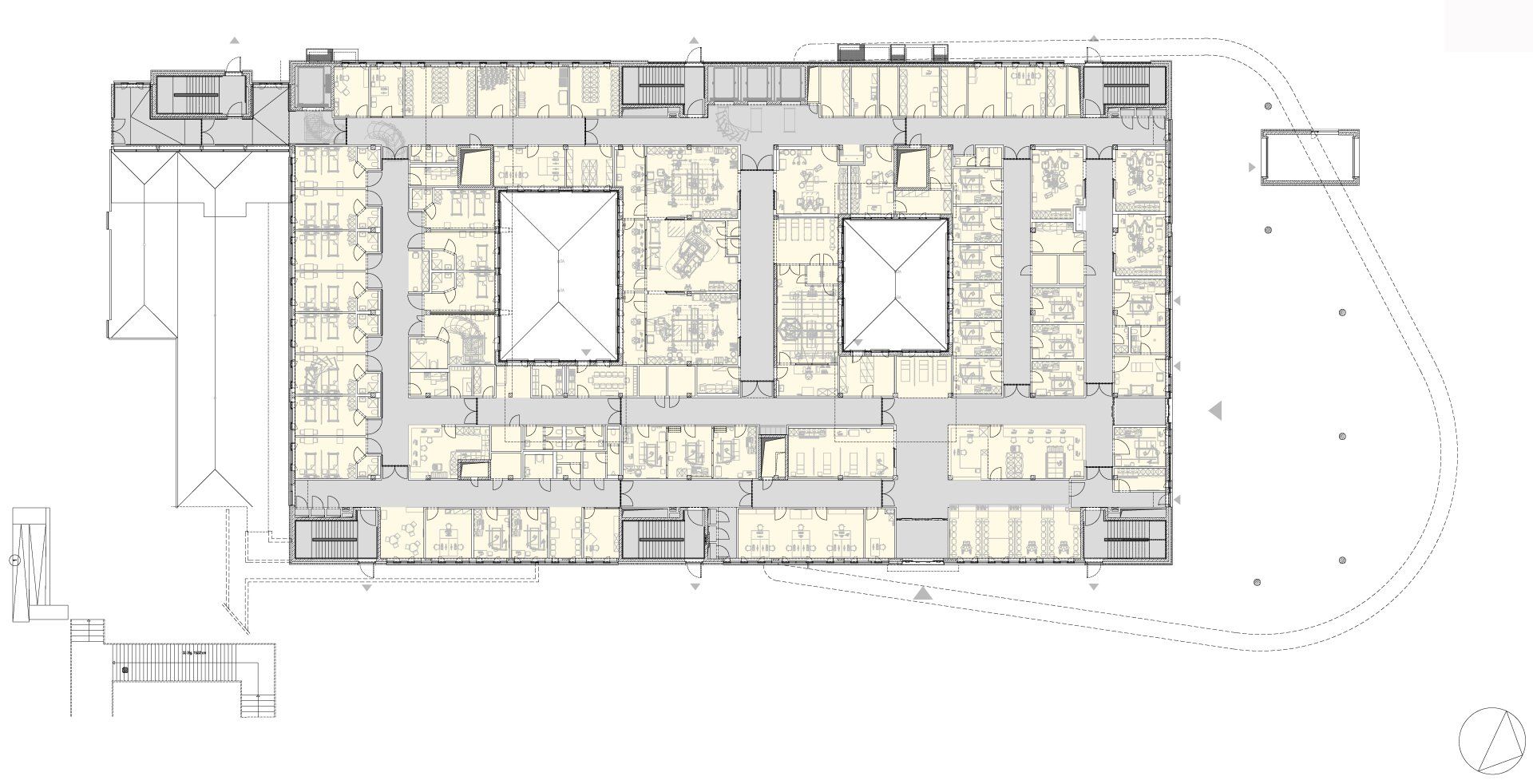
Hervorgegangen aus einem 2008 gewonnenen VOF-Verfahren plant tsj den Neubau der Zentralen Notaufnahme und angeschlossener zentraler Aufnahmestation, mit Operationssälen für die Abteilungen Unfallchirurgie und Plastische Hand- und Wiederherstellungschirurgie, Einrichtungen für die Katastrophenmedizin sowie einem Hubschrauberlandeplatz mit Luftrettungszentrum.
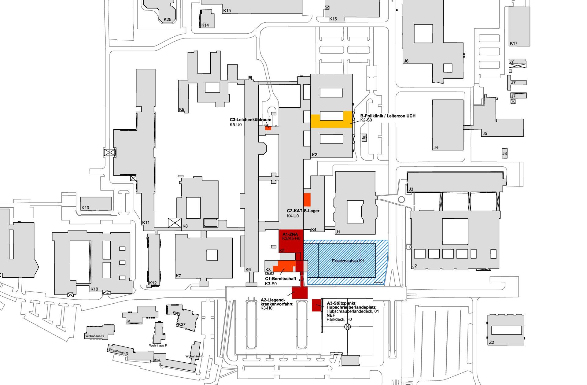
Aus organisatorischen Gründen muss der Neubau an der Stelle der aktuellen Notaufnahme errichtet werden. Für die im Bestandsgebäude untergebrachten Funktionen werden übergangsweise Ausweichbereiche in der Liegenschaft der Medizinischen Hochschule Hannover hergerichtet.
Die Fassade des Neubaus erhält eine metallisch und kühl wirkende Bekleidung aus Aluminiumtafeln, die als liegende Formate in unterschiedlichen Streifenhöhen verlegt werden. Darin eingelassen sind die zurückspringenden Fassadenbänder, die feststehende und zu öffnende Fensterflächen sowie rückseitig emaillierte opake Blindelemente aufnehmen. Die Eingänge des Gebäudes markiert eine über die Gebäudeecke hinweg geführte, dunkle Klinkerfläche. Aus der Fassadenbänderung heraus entwickelt sich die geschwungene Einfassung des Hubschrauberlandedecks, das gleichzeitig als Überdachung der Liegendvorfahrt dient. Seine Untersicht erhält eine Bekleidung aus grobmaschigem Streckmetall. Das Deck ruht auf Sichtbetonstützen. Auf dem Landedeck steht der mit einer weißaluminiumfarbenen Aluwelle verkleidete Baukörper des Luftrettungszentrums.
Auftraggeber:
Staatliches Baumanagement Hannover II
Fläche Interim:
3.130 m² BGF
Fläche Neubau:
12.850 m² BGF
Projektkosten Interim:
6,2 Mio.€
Projektkosten Neubau:
60,0 Mio.€
Planungsbeginn: 2008
Bauzeit Interim:
2015-2017
Rendering:
bloomimages, Hamburg





